




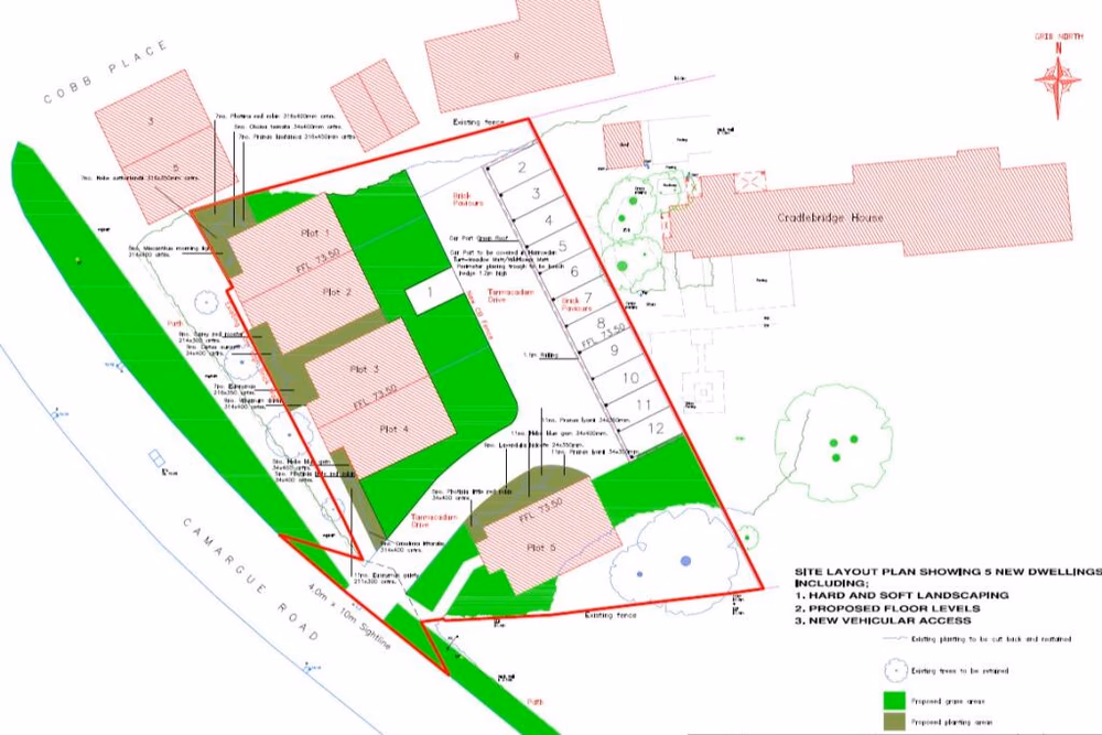
Development Land in Camargue Road for Sale - £385,000
Situated in this superb location, close to open countryside yet within walking distance of the railway station and the town centre, a fantastic development opportunity, with permission obtained for the erection of five residential properties.
Development Land in Camargue Road for Sale - £385,000
Description
Situated in this superb location, close to open countryside yet within walking distance of the railway station and the town centre, a fantastic development opportunity, with permission obtained for the erection of five residential properties.
Contact Agent
Smart Picks — Professionals Relevant to This Land
Based on this property's key features, here are the specialists you may want to consult as part of your due diligence: land agents, rics surveyors, rural solicitors and planning consultants.

Land Agents
Essential for navigating the land market, finding buyers, and securing the best price.

RICS Surveyors
High-value property (£385K+) requires professional valuation for accurate pricing and due diligence.

Rural Solicitors
Significant investment (£385K+) requires legal expertise for conveyancing, title checks, and transaction security.

Planning Consultants
Planning-sensitive site needs expert guidance for applications and development strategy.
Location
Camargue Road